Nordklint 29
Hem
Nordklint 29
Pris (ordinarie)
braattveta
Kontakt
Mer
Meny
Nordklint nr 29
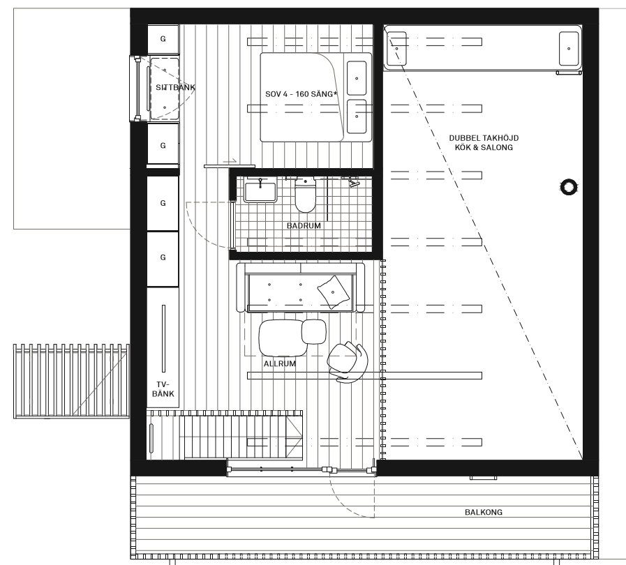
Ritning nedervåning
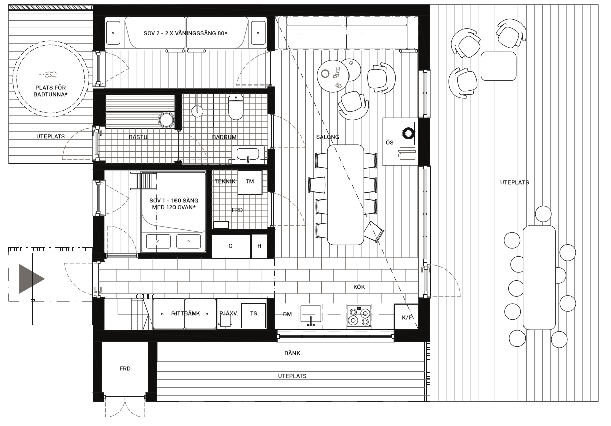
Ritning ovanvåning
Se lediga veckor och gör en bokning
Skapa din hemsida gratis!